Меню Поиск Разместить Избранное Кабинет

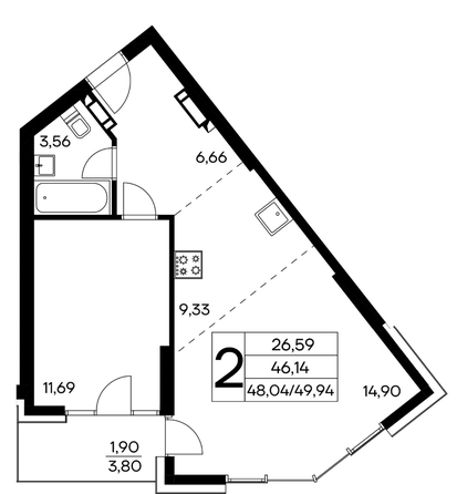
Продается 2-комн. квартира 49.94 м²

Объявление 8976, обнов. 06.04.26
6
15 731 100 ₽ 315 000 ₽/м²
Следить за ценой

Подписка на изменение цены

Мы сообщим вам, если цена объекта изменится
Нажимая кнопку «Подписаться» вы соглашаетесь с политикой конфиденциальности
Купить в ипотеку:
АКЦИЯ! Скидка 3%
Скидка при полной оплате в объектах компании «Интерстрой»
до 30.09.2026 Подробнее
Адрес
Алушта,
ул им. Профессора Свиргуненко стр., кв. 48
Срок сдачи
3 кв 2027 — по проекту
Состояние
Возведение верхних этажей
Застройщик
ИНТЕРСТРОЙ
Общая площадь
49.94 м²
Площадь кухни
9.33 м²
Этаж / всего
4, 5 / 16
Тип дома
Монолит-кирпич
Тип и серия дома
Новой планировки
Лоджия
1
Ремонт/отделка
Без отделки

Курортный комплекс «Лучистое» от ГК «ИнтерСтрой» в солнечной Алуште

Дома бизнес-класса с собственным реликтовым парком, подогреваемым бассейном и СПА.

Проект сочетает в себе современное жильё (квартиры – жилой фонд) и полный спектр курортной инфраструктуры.

Здесь уникальный мягкий и целебный микроклимат благодаря циркуляции воздушных масс морского побережья, гор и множеству вечнозеленых хвойных растений. В Алуште чистейшие мелкогалечные пляжи с прозрачной водой, природным кварцевым песком, плавным и комфортным входом в море.

КК «Лучистое» находится на возвышенности и имеет прекрасные видовые характеристики.

Квартиры с видом на горные вершины и морские просторы:

- эргономичные однокомнатные от 26 до 47 м²
- функциональные двухкомнатные от 35 до 119 м²
- просторные трёхкомнатные от 79 до 128 м²
- продуманные четырехкомнатные квартиры – 152 м²

В наличии двухуровневые квартиры с двумя и четырьмя комнатами, есть и уникальные лоты с видовыми террасами на море, панораму города, и величественные горы…

Особенно интересны и квартиры с патио на первых этажах. Утренний кофе на собственной террасе в окружении гортензий и терпкого аромата хвои - не мечта, а реальность!

Максимум для Вашего комфорта:

- закрытая приватная территория;
- дизайнерские холлы;
- система «умный дом»;
- вход в парадные по «face-id» по смарт-картам или доступ с мобильного устройства;
- бесшумные лифты;
- безбарьерная среда;
- авторское ландшафтное озеленение;
- воркаут-зоны;
- игровые комплексы на разные сценарии и возраст деток;
- многоуровневые лаунж-пространства;
- смотровые площадки;
- веревочный парк;
- зоны барбекю;
- йога-центр;
- тропа здоровья;
- площадка для гимнастики.

Комфорт и безопасность Вашего автомобиля

В жилом комплексе удобные парковочные пространства, в том числе, охраняемый крытый паркинг на 179 мест (включая мото-места), в котором жильцы смогут приобрести машино-место для своего любимого автомобиля.

Бизнес в Вашем доме

На первом этаже расположатся коммерческие помещения, полностью отвечающие требованиям современного стрит-ритейла и бизнес-пространства.

Вы сможете подобрать вариант практически под любые цели – размещение магазина, салона, кафе, спортзала, офиса. Прекрасно развитая инфраструктура и продуманные планировки позволят вести бизнес, не отвлекаясь на нюансы.

Благодаря своей неповторимой концепции и максимально выгодному месторасположению, курортный комплекс «Лучистое» идеально подходит для инвестиций и непременно обеспечит рост капиталовложения и максимальный доход от аренды. Все заботы на себя возьмет управляющая компания.

Доступна ипотека, в том числе семейная, маткапитал, рассрочка 0% от застройщика.

Оформление по договору долевого участия, с регистрацией в РосРеестре, и оплатой на эскроу-счет. Объект аккредитован под ипотеку ВТБ, ПСБ, СБЕРБАНК, АБ Россия, Генбанк. Возможность использовать мат.капитал. Военная ипотека.

Семейная ипотека от 6%.

Рассрочка от Застройщика без %. Первый взнос от 30%.

Ввод в эксплуатацию – 3 квартал 2027 г.

Застройщик ООО "СЗ "Лучистое", ИНН 9102251634, адрес: 295051, Республика Крым, г. Симферополь, б-р. Ленина, д.12, пом. 206. Проектная декларация размещена на сайте ЕИСЖС https://наш.дом.рф/.

ООО ИнтерСтрой Номер объявления SD91-8976.

ИНТЕРСТРОЙ
По вопросам покупки обращаться:
Позвонить
Скажите застройщику, что нашли это объявление на КРАСДОМЕ
Написать

Похожие объявления

Не можете найти нужный вариант?

Оставьте заявку на подбор объекта и мы отправим ее трем проверенным нами агентствам недвижимости. Они возьмут все вопросы поиска на себя.
Нажимая кнопку «Отправить заявку» вы соглашаетесь с политикой конфиденциальности.